Escrito: Londres, 5 de mayo de 1851.
Fuente de la edición en castellano:
Cartas sobre las ciencias de la naturaleza y las matematicas. Editorial
Anagrama , Barcelona. ISBN 81 -339 - 0031 -5
Titulo de la edición original de esta
edicion: Lettres sur les sciences de la nature (et les
mathématiques), Editions Sociales, Paris, 1973. Dai "manuscritti
matematici" di K. Marx. Critica marxista, Roma 1972.
Traducción: Joaquín
Jordá
Transcripción/html: Rodrigo Cisterna,
Abril de 2014
[Londres,] 5 de mayo [de 1851]
Te adjunto a continuación una copia en ingles, al pie de la letra, del artículo sobre la aplicación de la electricidad a la naturaleza. Te ruego que me contestes a vuelta de correo:
1) para decirme que te pareció;
2) para explicarle esta historia in plain German [en buen alemán], pues a mi me resulta tan oscura como una botella de tinta.

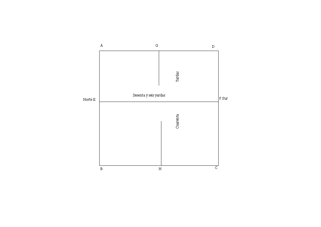
Se divide un campo en rectángulos de 76 yardas de longitud y 40 yardas de anchura, de modo que cada rectángulo tenga exactamente un acre de superficie. El modelo viene dado por el rectángulo superior.
En cada uno de los puntos A, B, C, D, se clavan unas estacas en el suelo. Las líneas exteriores representan unos cables de hierro de amplia sección atados a las 4 estacas y que van de una a otra hasta formar un rectángulo hundido de 3 pulgadas en el suelo. En los puntos E y F de colocan unas pértigas de 15 pies de altura. En el punto E, se junta el hilo situado en tierra con un cable que se hace correr hasta la punta de la pértiga; se tiende este cable por encima del rectángulo y se une a la punta de pértiga situada en F, a lo largo de la cual se le hace bajar hasta unirlo de nuevo con el cable subterráneo. Hay que procurar que el rectángulo este orientado exactamente Norte-Sur, de manera que el cable tendido entre E y F forme un angulo recto con el ecuador. Es bien sabido que en la atmosfera se produce una cantidad considerable de electricidad y que siempre se desplaza de Este a Oeste siguiendo el movimiento de la tierra. Esta electricidad es atraída por el cable tendido de E a F y trasmitida a los cables subterráneos que forman el rectángulo A B.C.D. se podrá producir la cantidad de electricidad necesaria situando en G, bajo tierra, un saco de carbón vegetal y en H unas placas de cinc y uniéndolas por un cable aéreo tendido entre las dos pértigas, igual al modelo que une E con F, de modo que las dos pértigas, igual al modelo que une E con F, de modo que las dos cables se crucen.
El coste de esta instalación asciende a una libra por acre; y puede durar de 10 a 15 años si se tiene la precaución de desmontar los cables y volverlos a montar cada año.
Las pértigas son de madera seca. Cuanto mayor es la superficie, mas bajos son los gastos. He ahí lo que se debe hacer para la preparación del terreno: con una brújula marinera y unos trozos de bramantes se determinan los puntos donde hay que clavar las estacas a las que se debe atar el cable subterranea (que debe pasar por unas pestañas). Hay que procurar que el lado mayor del rectángulo este orientado exactamente en la direccion Norte-Sur y el lado menor Este-Oeste. Después se entierra este cable a unas 2 o 3 pulgadas de profundidad. Las líneas que determinan la disposición del cable colocado en la punta de las pertigas deben unirse al cable subterráneo. Para ello, se clavara una estaca de madera provista de una pestaña y se orientaran, con ayuda de la brújula, las dos pértigas (una de 14 pies, la otra de 15) exactamente en el sentido Norte-Sur, se tensara el cable de una punta a la otra y se lo unira a la estaca de madera, procurando al mismo tiempo situarla en este punto en contacto con el cable subarraneo. El cable aéreo [no] debe estar demasiado tenso a fin de evitar que el viento lo arranque.
Voila l'affaire